ESSMEK

Cerca
Vai ai contenuti

Menu principale:

KNOW HOW PROCESSO

Know how di processo fusione alluminio


EsSMEK progetta e assiste il cliente nella realizzazione di lay out produttivi.
L’assistenza consiste nel seguire la messa in funzione di impianti elettrici, idraulici, isole di colata, lavorazione meccanica
e verniciatura.

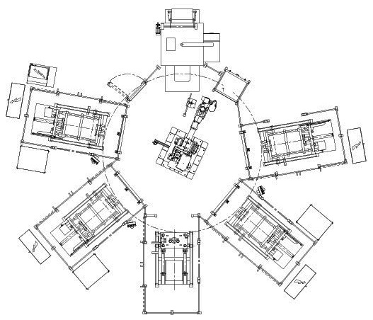
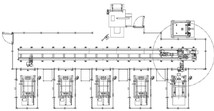
Esempi di lay-out di fonderia realizzati dai nostri tecnici.


          Fonderia fusione ruote Bassa pressione

           



Fonderia pressocolata

             




Esempi di gruppi di colata gravità, pressocolata e bassa pressione.


     Linea fusione a gravità con robot di colata e prelievo pezzo    

                    


Gruppo circolare conchigliatrici con robot di colata

               



Linea macchine pressocolata                                    

          




Linea macchine bassa pressione

                 







Torna ai contenuti | Torna al menu